繼上次跟大家分享 新家裝潢預算怎麼抓?不免俗地也來跟大家分享下芬尼自己在裝潢過程中,面臨預算和夢想的拉鋸時,最讓我苦惱和煩惱的幾個工程項目:
文章目錄(點名稱快速前往)
⚠️內文分享之所有3D模擬圖、平面設計圖版權為成寓設計所有,翻印必究⚠️
客廳設計
為什麼會對客廳這麼的執著呢?
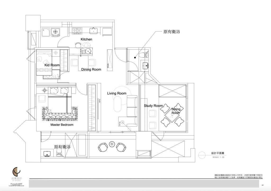
因為前屋主是對老夫妻,當初買預售屋時把原本的三房兩廳,直接客變成一間大房的格局,這就讓未來可能會有長輩同住、生小孩計畫少了可以睡覺的房間,那問題來了,到底次臥要隔在(舊)餐廳位置還是客廳後方的和室呢?深思熟慮後,我們決定留下大片客廳採光,將房間隔在主臥隔壁,雖然次臥房間小了點,但是保留了寬敞的客廳空間、以及我最愛的採光☀️
客廳後方的和室就留著,不過做了些小改動,不僅可以變身為臨時客房、也讓整個空間變得更加「日系無印風」~ 最後會跟大家分享好奇的Before/After對比照唷!(興奮)

下面的照片是新家剛釘好薄版、木工師傅們剛手工打造出來熱騰騰的書桌和和室,再加上那片採光~整個客廳很寬敞明亮,有休息的空間也有辦公的空間,正好符合我們的生活型態與需求,真是好險我當初有堅持不把隔間牆蓋在這裡啊!!
這區塊剛好是佔了裝潢成本最高的木工區,與系統櫃不同,木工可以創造出各種不同的角度、弧形、高矮胖瘦的櫃體,只要你想得出來又符合架構,基本上應該都可行(?) 外表我們是採用實木貼皮,選色也是跟地板一起選,這樣比較知道怎麼互相搭配~



電視櫃設計
客廳中也很重要的區域⏤電視櫃,畢竟從進門第一眼就會看到的角落,當然也要好好設計一翻~ 其中最最重要的就是「牽線」「牽線」「牽線」,真的很重要所以粗體講三次!對芬尼來說它包含了:
- 網路線/孔
- 第四臺/MOD
- HDMI
- 插座
小時候網路、電腦這些東西都還不普及,大部分的家庭都是在後期才開始請電信公司到家中安裝網路,高級一點裝光纖,光是ADSl數據機、路由器等等,東西線路就一堆,放在外面實在不好看,所以裝潢的時候對於電視櫃的唯一要求,就是要「乾淨」;至於家裡裝不裝第四臺、MOD,這就因人而異了,不過建議可以先提早設想好,需要的話可以先跟設計師討論你的(開放)電器櫃要怎麼留孔給電信公司裝;第三點,HDMI好像很普通?不,想想你費盡千辛萬苦買來的 空氣清淨機兼wifi分享器 PS5、拿來種大頭菜和賽車的Switch、還有媽媽最愛的AppleTV,這些都是需要接HDMI才能在電視爽爽看呢!
以上舉例是不是瞬間讓你覺得電視櫃應該越大越好呢哈哈,如果你跟芬尼一樣是喜歡把所有阿哩阿雜的線路通通收起來的人,就很適合跟我走同個路線,把整個電視牆封起來、留下旁邊的展示櫃當電視櫃使用,走路不會踢到、小朋友拉不到線、同時可以把所有凌亂藏起來,只留下美麗的PS5/Switch~是不是很棒呢


挑選木地板
當初為了省預算,原本想將就著用建商付的拋光石英磚,反正夏天踩著也涼涼的、滿舒服,加上老家一直都是用磁磚地板也頗習慣,不過最後在看到客廳3D模擬圖時,瞬間只想把白白的地板填滿木頭色哈哈哈(果然女人都是善變的)
挑選過程中,設計師準備了幾本不同的廠商的樣本給我挑選,有台製和進口廠商。最後選擇了德國高能得思 Kronotex的超耐磨木地板「夏日貝格橡木 Summer Oak Beige」型號!挑選過程中,強烈建議屋主一定要積極參與選色,避免未來得天天踩著自己不喜歡的顏色、材質、紋路的地板~選定好型號,也可以請設計師讓廠商提供幾張實際施作的案場照片來參考,畢竟一小塊的木板、和一大片的地板組裝起來,感受上肯定會有所不同,透過參考實際施作的照片可以讓屋主減少預期落差哦!




Ta-Da!
實際鋪設完地板的樣貌,真的是氛圍完全不一樣了~


餐廳動線&廚房電器櫃
接下來不能不提到芬尼最重要「廚房」
前屋主當初客變把房間隔間牆都拆了,在主臥外面留了一個很大的用餐區,芬尼後來決定隔一間次臥出來當未來的客房/小孩房,廚房的空間和動線也都和設計師重新討論,從原本夢想的中島設計,到最後的取而代之出現的是頂天系統櫃,中間也是經歷一番掙扎啊~畢竟中島應該是每個愛下廚的人,都夢寐以求的設計!不過因為空間有限,芬尼自己的煮飯烘焙傢伙已經多到滿出來,只好忍痛選擇了電器櫃,因為空間小收納才是王道~

電器櫃走系統櫃設計,簡單俐落又美觀~建議大家在設計動線和櫃體之前,就先想好自己有哪些家電、各自的大小、以及最符合你自己生活習慣的擺放位置;芬尼自己在討論過程中,設計師提供模擬圖給我確認長寬高和設計時,我先把所有的電器和尺寸列下來,然後按照自己的喜好、習慣、身高手繪了一個我理想中的電器櫃設計給設計師,因為有打算放炊飯器和烤箱,所以其中一個層櫃改成「抽屜型」,比較方便使用也不會讓水蒸氣破壞系統櫃的貼皮,另外也因為有安裝大烤箱的打算,所以也請水電師傅提早預留220V的插座讓系統櫃師傅可以直接安裝
- BALMUDA烤箱: 高21cm, 寬36cm
- Nespresso咖啡機:高28cm, 寬16cm
- SodaStream氣泡水機:高43.2cm, 寬17.3cm
- Yamsaki桌上型攪拌機 → 體積太大最終決定放廚房的平台角落
- 象印炊飯鍋:高30cm, 寬32cm
- 海爾順熱水器:高32cm, 寬15cm
- Bosch烤箱:高60cm, 寬60cm→ 因為是內嵌式,所以有請系統櫃公司特別留剛好的長寬高和220V的插座






很多人會問,頂天的櫃子不就是大家最不推薦的做法嗎?因為太高、不好拿取,根本用不到!
確實如此,他的缺點依舊存在。不過對我來說,不做到頂天,櫃子最上面就會累積一大堆很難清掃的灰塵,頂天櫃子起碼有門片可以阻止灰塵的猖狂;至於高度太高的問題,買一個小梯子或墊腳凳就滿可以解決了,還是太高也沒關係就叫先森站上去,你在下面發號施令就行了~(推薦IKEA的BEKVÄM墊腳凳👍🏻)

傢俱挑選
最後的最後,來跟大家分享大型傢俱的挑選:
- 新家園沙發
- 宜得利餐桌餐椅
- 晚安奈特床架
首先是來到我家都誇獎的三人座沙發~在板橋的新家園NewHouse訂製的611-波爾多型號;新家園本身是沙發工廠,位在板橋的銷售中心有非常多款的沙發可以試坐、試躺,藝人Molly莫莉的沙發也是他們家訂製的唷!我們坐來坐去,選了很久,後來試坐到一張他們的新品 -611波爾多型號、搭配以色列貓抓布,一坐上去先森的屁股直接黏著,我自己也是躺得很舒適,加上座椅又夠深(足足100cm) 滿足我可以蜷縮在沙發上耍廢的願望,確認了可以搭配家裡空間大小訂製230cm的沙發後,直接下單嚕!
負責接待我們的是簡阿姨~年紀雖然大、但是感受得到他對公司的熱忱以及真心想把顧客挑選到最合適的沙發,介紹過程很仔細、也主動給予我們時間和空間討論,慢慢感受每一張沙發和布料,中間也不會催促我們趕緊做決定,逛起來很是舒適,大大大推👍🏻👍🏻👍🏻👍🏻👍🏻





床架來的時候忘了照相,現在堆積一堆紙箱就不另外拍照了哈哈,官網上的照片跟實體基本上沒有太多色差,芬尼挑的是燕麥色,搭配12cm原木色床腳,就可以讓掃地機器人在家毫無阻礙地前進哩!
目前使用起來覺得很不錯,坐在床邊的時候不會覺得床加上床架太高,床腳也有內縮所以不容易踢到小妞妞,整體床架摸起來是舒服的亞麻材質很舒適~推薦給大家👍🏻

餐桌的話,一開始很猶豫到底要買幾個人坐才好,怕太大張會影響廚房動線、太小朋友來會不夠坐,所以決定等裝潢都大致底定後再去實際體驗長寬、然後去挑合適的餐桌~所以到了很後期才開始研究餐桌,一研究發現原木餐桌的價格都貴鬆鬆,伸縮餐桌本身也很難找到長度合適的;東挑西選一直都沒找到心儀的桌子,在某天逛宜得利買收納盒的時候,發現了一張原木伸縮餐桌,大小也剛剛好合適家裡的空間,於是上網各方收集不同的類似餐桌後決定下單!但因為缺貨,要10月中才會來……🥲

📢 最後的最後
我家終於完工~可以入住啦!🎉🎉🎉






